性能特点: 1、系统可设定三种动作模式: ①润滑:开机时先执行润滑时间计时。 ②间歇:开机时先执行间歇时间计时(时间单位有秒/分/时/次转...
应用范围: 电动
1、系统可设定三种动作模式:
①润滑:开机时先执行润滑时间计时。
②间歇:开机时先执行间歇时间计时(时间单位有秒/分/时/次转换)。
③记忆:断电后再次送电可继续执行之前未完成的间歇时。
2、润滑时间和间歇时间均可调整(内设有锁键功能,可锁定设置后的润滑和间歇时间)。
3、设有液位开关,压力开关(常闭,可选配)。当油量或压力不足时蜂鸣器会发出报警并将异常信号输出。
①压力不足显示Erp。
②液位不足显示Ero。
4、系统时间可设定,LUB润滑时间:1-999(秒)INT间歇时间:1-999(分)(特殊要求可定制)。
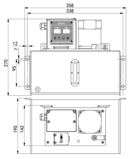
5、面板指示灯可显示出注油机的润滑和间歇状态。
6、系统可使用“RST”键,强制润滑或消除异常报警信号。
7、特殊合金齿轮泵与感应式电机搭配,使用寿命长,低噪音。
8、在抵抗式系统中无脱压装置,需配L比例接头分配器使用。
9、设有溢流阀,防止润滑泵超负荷工作及管路由于压力过高而损坏。
10、使用油脂范围NLGI000#-00#锂基脂。
电动润滑泵可广泛应用于机床、塑料、纺织、轻工、印刷、自动扶梯和输送器等机械设备的集中润滑系统

1.电源接头必须接好固紧,确保使用安全,并检查泵装置上的油位发讯、压力开关是否灵敏。
2.润滑泵的额定工作压力为2.0MPa(产品出厂己调至2.0MPa),不得擅自调整调压阀。
3.使用油剂粘度:68-1800cSt见附录表(推荐:0℃以下采用N32#导轨油或机械油:1℃-20℃采用N32#-N100#导轨油或机械油:21℃以上采用N100#-N220#导轨油、机械油)导轨油:GB/T7631.11-94,机械油:GB443-89。禁止使用含有水份的润滑油与含有抗磨剂的润滑油(含有水份的润滑油、如设备长时间停止工作,会导致润滑系统内的元件生锈易造成润滑装置故障;含有抗磨剂的润滑油易堵塞润滑系统中的滤油器)。
4.首次使用:启动油泵运行,充满主油管→拧下系统末端联接体的闭口螺丝→让油剂从闭口螺丝螺孔排出(排除管道中的杂质与气泡)→观察排出的油剂无气穴(气泡),按原装配,紧固闭口螺丝→系统压力升至约2MPa(观察压力表),持续5~10秒→切断电源,泵停止工作→系统压力卸压至0位→然后再次启动油泵运行给油→泵工作压力上升至约2.0MPa→观察各计量件,排油正常后将计量件与支油管路连接紧固→循环操作数次,使全部支油管末端均出油,无气穴(气泡)一逐个连接润滑点→设定供油周期进行自动供油(参阅第四条)。
5.检查各部件连接处绝对不能有滲油现象,如发现油必须紧固,严防滲油(采用目测或手指触摸各部件连接处)。
注:a.主油管连接处漏油,系统压力不能建立,导致计量件排油不均匀或不排油。
b.计量件与支油管连接处涔油,容易进入空气,会产生支油管内润滑油泄。
6.严禁低油位操作,易造成油泵故障或排出油剂含气泡,低油位开关发讯号时必须立即添加指定的油剂。

| 2L | 4L | 6L | 8L |
|---|---|---|---|
![]() |
![]() |
![]() |
![]() |

